VPC33 Initial Setup

    From ViewSonic User Guide Database

    Installing the VPC33

    1. Remove the slot-in PC cover of the display.
    2. VPC33 Initial Setup 1.png
    3. Carefully insert the VPC33 into the PC slot of the display.
    4. VPC33 Initial Setup 2.png
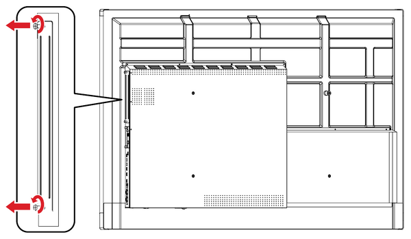
    5. Secure the VPC33 to the display with the two (2) screws.
    6. NOTE:
      • Please note that the two (2) antennas must be installed on the VPC33.
      • Please pay attention to the installation direction of the VPC33/VPC35/VPC37, with the vents facing outwards to avoid damage.
      • The VPC products do not support hot swapping. When removing or installing the device, turn off the power supply for both the display and VPC product first.